SCOPE OF WORK :
2 Ramon Ct, Danville: This property was built in 1951 on .53 Acre that is completely flat and situated on the most desired Danville West Side. With Minutes to San Ramon Valley High School and downtown Danville’s restaurants and town life.
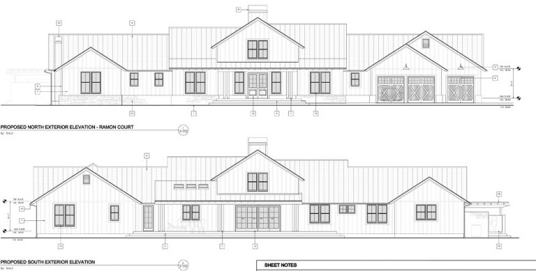
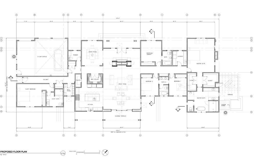
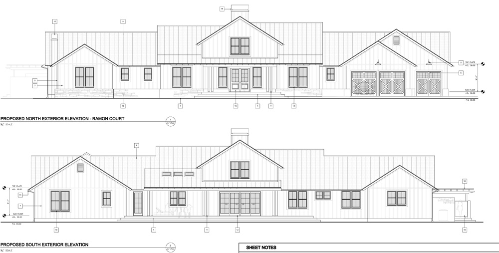
This project will encompass a 2 phase construction. Immediate demo and rehab face lift and New Roof, Kitchen and baths, flowing and converting the garage back to a 2 car garage for the old house at 1,100 sq ft 2/2 for a rental or In-Law Unit. Commencing immediately with the architect and city permitting a new build of a custom 4,700 sq ft, 4 / 4.5 next to the Guest House and separated by the large lot and commencement of connecting to sewer main at Danville Blvd. Our renderings are initial and rough, we will be designing a modern Craftsman Luxury 4 bedroom 4.5 baths with luxurious amenities throughout. The Foray entry will be a grand 12 foot vaulted ceiling with elegant wall stone and Chevron Matte Marble Tile. The main house will have Kora Tile throughout with a kitchen the rivals that of any professional chef with Wolf Range, Twin Subs., Speed Oven and Steamer. The main house will be a Luxury Craftsman Style Home with elaborate stone and usage of wood through out. Vaulted 12 ft ceilings throughout and the Master Suite will be grand with a wet room bathroom, enormous walk in with custom cabinets and elaborate stone finishes.
Main House Style:
We will be redesigning this house to a Craftsman Style with CA Dormers and elegant entry, enormous 12 ft Vaulted ceilings and a great room that drops the jaw of most all. We will be leaving the existing 3 walls and doing an addition to 3,898 Sq Ft home to include a 4 Bedroom, 3.5 Bath property with a oversized 3 Car Garage, a walk in wine cellar, expansive great room and kitchen and amenities galore will facilitate every prospective buyers desire.
Main House:
As you enter the massive double French doors you open your eyes to a enormous open floor plan, immediately walking into the expansive living, great room kitchen area. The living room will house a In-Wall Fireplace encased with elaborate stone and live edge Claro Walnut Wood mantle, a 80” Flat Screen TV is the center focal point for entertainment. With a great room large enough to place a pool table or any other form of entertaining lifestyle needed.
We will be adding a large walk in wine cellar to lined with custom tongue and groove ceiling and walls, elaborate stone floor and a 1,500 bottle racking system that is all fully self contained and chilled. A entertaining wet bar will be added to the living room with cabinets to match the Kitchen.
All new electrical and main, HVAC and plumbing throughout.
Bedrooms to have Carpet Installed, Main living areas and hallways to have Kora Tile floors with tile in the bathroom and laundry room.
Fireplaces will be Gas In-wall units and be surrounded by Quartzite stone. (Touch Plate Contract Pricing)
Kitchen: This kitchen will be moved from the initial design layout to be a Chef;s Kitchen complete with a working island chopping block and prep table with a rinsing sink.
The kitchen will be opened up and rearranged to allow for a functioning island and working island counter and bar height seating. This will have a see through step and stainless posts to support from counter height, and custom ledged by 2.5 ft wide bar height counter. (This is included in the 6’ width counter.
Amenities will include, higher end Wolf 48” Duel Fuel Range, Twin Subs, Speed Oven and Steamer all being Stainless Appliance Package with the Touch Plate Contracted appliance packages. Semi custom cabinets, stainless commercial apron or farmhouse under the counter sink. Elaborate granite stone work on all counter tops. All handles on appliances to be pro handle stainless steel. Soap Pump and push button garbage disposal. Canned lights and island dramatic pendent lighting.
Dining Room: Will be separated by custom cabinetry and Brazillian Pecan Walnut flooring.
Water heater closet: On demand Tankless Water heater and HVAC on both units.
Laundry Room: To house full cabinetry, as sink and folding and hanging area for family of four volume of cloths.
Master Bedroom: The entrance will be a grand and dramatic. You will have 12’ vaulted ceilings, with a enormous double Barn Door Entry to the main bedroom. The bathroom will be open wet room with a custom full glass shower and tub room, bench seats large shower heads and spray hand held heads with modern stone amenities. A Chinese Soaking Tub will encompass the shower room. The bathroom will be set off with a closet utilizing the master suite size in proportion and updated vessel sinks with elaborate matching stone counter tops and contrasting tile floors.
Bedrooms: Will be very large and open layouts with large closets and a central bathroom to each. All to be updated, modernized with tile flooring, new cabinetry and granite counters with Vessel Sinks.
Lighting: All lighting in the house is LED Canned Recessed Lighting with Dimmable Controllers in all rooms. Accent lighting above all crown molding on cabinets as well as under upper cabinets, these will be dimmable LED Lighting throughout the kitchen. We will be using canned and LED lights to light up the entire property up lighting the oaks and the Bocce’ court will have LED Bistro String lights over the playing area on a separate switch.
Backyard Deck & Entertainment: The back yards will commingle together with stone pavers, lawn, veg garden along with a BBQ Area next to the Bocce’ court.
Landscaping – Will remain a low water usage grass and or similar landscaping in both the front and back yards.



