In Design and Commencing Construction Jan. 15th, 2018
SCOPE OF WORK – FINAL
624 Montecito Blvd, Napa: Top of Forested Hill Property – This piece of property is built in 1988 on over 5.29 Acres. Currently and entire 2 bedrooms and 2 full baths upstairs are not permitted. But there are 2 full bedrooms and 2 full baths downstairs permitted. We will be adding onto the property to be approx. 3,500 sq. ft. of living space once architectural design is completed.
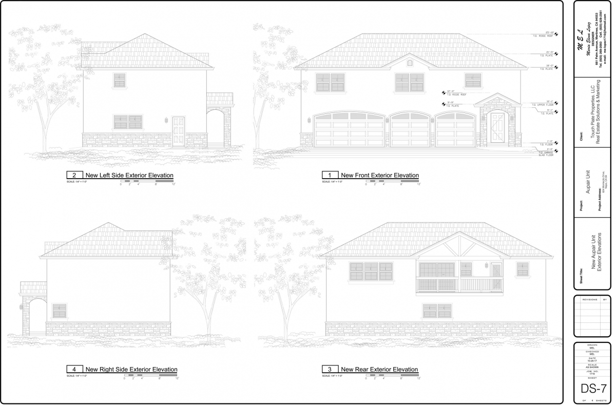
Commencing with the Garage, the garage will remain in its location and will be taking the roof line off the entire house and rebuilding to a Craftsman look with two Dormers over the front garage and over the main entry of the house. The garage will remain a oversized 3 car garage with clear Black Alum. Frosted Glass garage doors. All support columns and face of front of house and around the structure of the property to be encased in stone,.
Main House Style: House to have new roof installed and while reconfiguring to a Craftsman Style Property look and feel along with elaborate stone work all around.
Front Porch and Entry: Front porch will be extended to the front yard and driveway walkway entrance. With a expansive front entry all stoned with stoned columns and the inside foyer entry will be grand vaulted ceiling with welcoming a elaborate Glass Vaulted Wine Cellar encapsulating the elaborate modern staircase to upstairs.
The inside of the house will be all opened up to a incredible large great room feel. All living / great room, dining and kitchen all viewed as you enter the front doors.
All Tile to be heated flooring through out the house and kitchen as well as all bathrooms. New technology from Ring, LED Video CAM Wireless to iPhone or Galaxy Phone door bell ringer to be installed.
Kitchen: This kitchen will be opened up There will be a working island approx. 11-7”’ long x 6 feet width the matches cabinetry and counter of the dining room. This will have a Live Edge Claro CA Black Walnut 12’ Bar Counter. NOTE: The 48” Dual Fuel Range is now in the Island Directly across from the Sink. The kitchen sink now is center on the wall facing the front yard with a 53” wide x 48” tall Double Wing Crank Out Bay Window. See Pic.
A long expansive Eating / Entertaining counter will be closer to the fireplace side. With the walls being knocked down to counter height island and bar height at the end of the island. This will have a see through step and stainless posts to support from counter height, and custom ledged by 2.5 ft wide bar height counter. (This is included in the 6’ width counter. You will see the entire family, living, great room as well as the outer deck and river valley floor views through the glass pocket sliding doors. The entire area will be open and viewable form the kitchen.
Amenities will include, a commercial Thermador Touch Place Contracted appliance packages with Wood Panel Fridge and Freezer to match cabinets, commercial style dishwasher and stainless commercial apron or farmhouse under the counter sink. Elaborate granite stone work on all counter tops. All handles on appliances to be pro handle stainless steel. Soap Pump and push button garbage disposal.
Canned lights and island dramatic lighting will encompass the whole greatroom and kitchen area. Note: the Kitchen cabinets adjacent to the Au Pair wall, will have a cavity to the crown of the upper cabinets. Please light up the back side of upper cabinets on this section.
There will be bar area counter for patrons to seat at the length of the kitchen for entertaining and viewing. This will be a drop counter bar height.
The Cabinets will be semi custom white Cherry wood with custom fluting and enhanced color trim of grey and black. See pictures.
Dining Room: Adding the Blow Out of the Living Room wall and a 9’ Window (6’ center window with 2 wing windows)
Walk In Wine Cellar: There will be a walk in wine cellar that should house approx. 1,500 bottles of wine or more and will be lit up to with LED Rope lighting from behind and at the top of the rack system. This will have a center counter top on the left side of the entry way for pairings. This will be climate controlled. The entry will be a glass door with commercial grade pro handle to match the kitchen. (Note: Adding a SINK in Cellar)
Full downstairs Bath – This will be updated with Travertine stone floors, cabinets and vessel sink to match that of the master and spare baths and Au Pair. Again, Heated Floors.
Hallway furnace and water heater closet: We will be relocating the furnace to the rafters and not inside the property living area and install a On demand Tankless Water heater.
Two upstairs Bedrooms upstairs will each have two full bathrooms that are essentially master suite size and quality of finishes .Travertine stone floors, cabinetry and Granite Stone Counters to match the master. A Tub Shower with a Handheld, Aqua Jetted Shower Head complete with elaborate Travertine Stone and accent tile. Inlaid shower boxes and blue tooth stereo with heat lamps.
Custom Home Theatre Room: As you come upstairs from the stairway you will hit a landing that will lead you to either the first bedroom or into a large Home Theatre Room with sound deadening walls, custom build eight leather reclining chairs and a true theatre screen with sound system.
Laundry Room: Next to master entry will be a custom built laundry room that will house washer & dryer, custom cabinets, a sink and a stainless drying pole with plenty of cabinet storage and granite counter space for folding cloths. The floor will be Travertine stone and heated as well. The entry door will be a LIVE Edge Claro CA Black Walnut Barn Door that will be seen from the entire house and will match the 12’ bar Counter and the two China Hutch Counters as well as the ½ Bath Barn Door.
Master Bedroom: We will be opening up this master to have an expansive room added with a view of the deck, oak trees and valley views. This will be a hers and his closet centered by a expansive bathroom that will include Chinese Soaking tub, His Urinal and hers Urinal, master shower with a triple head steam room shower, bench seat, 20’ x 12’ with elaborate stone and tile detail. Heat lamps in shower with heated floors on tile bathroom only not in shower. Showerheads & handheld will be on separate heat valves. The handheld will be on the Her side and plumbed on the same valve as her showerhead. Complete with cabinetry that matches balance of the property. A vanity with double vessel sinks and a drop down seated powder / make up counter that is separate from the main sink counters, complete with blue tooth stereo inside showers and outside, heat lamps and heated floors.
The walk in closet will be complete with lighted shoe, boot, hat storage for 300 pairs with lower Boot section and upper large hat sections. Custom Seating sitting benches for putting shoes.
Lighting: All lighting in the house is LED Canned Recessed Lighting with Dimmable Controllers in all rooms. Accent lighting above all crown molding on cabinets as well as under upper cabinets, these will be dimmable LED Lighting throughout the kitchen. We will be using canned and LED lights to light up the entire property up lighting the oaks and pine trees as well as the stone work and driveway up to the property. The Bocce’ court will have LED Bistro String lights over the playing area on a separate switch.
Backyard Deck & Entertainment: The deck will be expansive 1,850 Sq Ft, commencing from the backside of the house, with entrances from both glass Frencgh Doors between the Fireplace wall and cantilevering out over the hillside. We will step up the deck to a higher lever as it cantelevors over the hillside. Approx. 30 Ft from the house will will go up two to 3 steps in elevation. Hence allow view and lifestyle above the tree line and viewing all of the Napa River and the City lights. This will be created out of Trex and house inlaid Bocce’ Court and a custom (gas plumbed and ran from the house) BBQ Pit with custom seating for 12 + persons.
Infinity Pool & BBQ Living Area – Outside the Au Pair unit and between the house and the garage we will adding a Infinity Edge Pool that will be surrounded by a BBQ area with plumbed gas line from the house and electrical, that will be complete with stone pavers or stamp concrete and views of the entire yard and the Coombsville Valley Vineyards, Hillside and valley floor.
Potting Plant Bins – We will be adding custom potting bins to the back yard for the garden grower in the family.
Terraces in the Backyard: In order to utilize all the backyard we will be adding stone terraces to the usable area of the backyard under the extended deck. There is over 5 acres if usable hillside overshadowed by huge oaks and we will create a enormous custom walking trails in the property for the new owner.

